20303 Irun, ES




























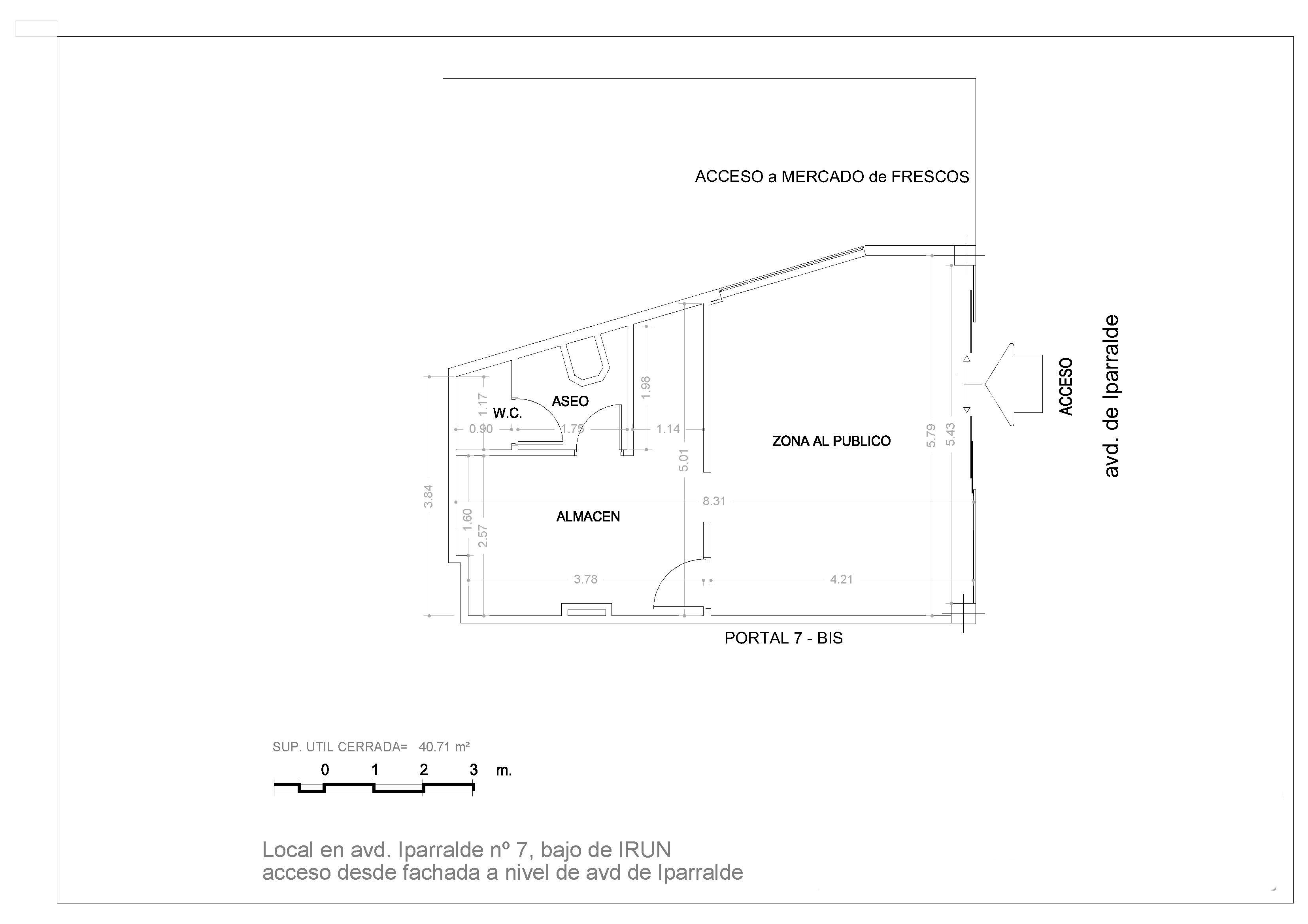
Ubicación perfecta para este local situado en la Avenida de Iparralde numero 7, junto a la entrada "del mercado" del centro comercial Mendibil y próximo a los juzgados de Irún. Local a pie de calle, de unos 45m2 distribuidos en dos espacios. Dispone de baño. Salida de humos. Alquilado actualmente. El local pertenece a los locales que integran Mendibil aunque no esta sujeto al mismo horario. Amplia visibilidad. Transito importante de personas. El local es del 2001. Frente al local esta ubicado el super-amara, hacienda y otros mas. Infórmate en nuestras oficinas de Paseo Colon, 27, junto a la heladeria Yon Gallardo, inmobiliaria Urme.
| Referencia | Ur426 |
| Precio | 118.000,00 € |
| Superficie | 45 m2 |
| Habitaciones | 0 |
| Baños | 1 |
| Orientación | este |
| Transacción | compra |
| Año Construcción | |
| Ubicación | Irun, ES |
| Calefacción | electricidad |
| Certificado Energetico | D |
| Conservación | excelente |
Fundada en 2004
Servicio Postventa
Extensa red comercial